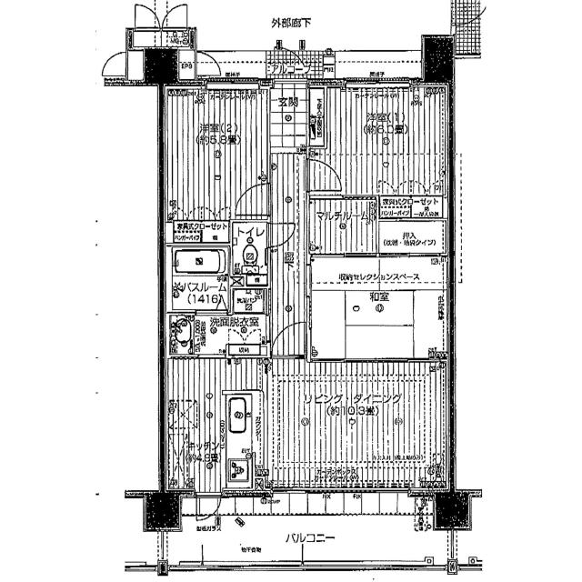
物件概要
- 賃料
- 115,000円
- 敷金 / 礼金
- 2ヶ月 / 1ヶ月
- 間取り
- 3 LDK
- 広さ
- 76.12m²
- 階数
- 10 階建
- 築年月
- 2003/12
- 総戸数
- ー戸
- 建物構造
- SRC
- 種別
- マンション
- 所在地
-
鳥取県鳥取市青葉町2
- 交通
- 駅の近く
- エリア情報
-
鳥取駅北側,千代川東
- 校区
- 鳥取市立城北小学校
- 周辺施設
-
- マクドナルド鳥取丸山店 まで、569mです
- 最寄りの薬局は、1,173mです。
- 最寄りのスーパーは、251mです。







