物件概要
- 賃料
- 31,000円
- 敷金 / 礼金
- 50000円 / 1ヶ月
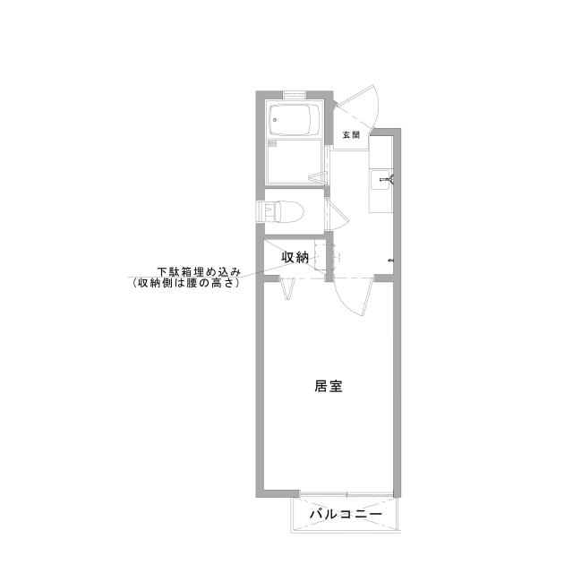
- 間取り
- 1 K
- 広さ
- 17.52m²
- 階数
- 2 階建
- 築年月
- 2001/03
- 総戸数
- ー
- 建物構造
- 木造
- 種別
- アパート
- 所在地
-
鳥取県鳥取市寺町
- 交通
- 鳥取駅の近く
- エリア情報
-
鳥取駅北側,千代川東
- 校区
- ー
- 周辺施設
-
- 駅名:鳥取
- ルート名:JR山陰本線
- 鳥取大工町郵便局 まで、133mです
- 最寄りの薬局は、367mです。
- 最寄りのコンビニは、386mです。
- 最寄りのスーパーは、806mです。







