物件概要
- 賃料
- 48,000〜51,000円
- 敷金 / 礼金
- 2ヶ月 / 1ヶ月
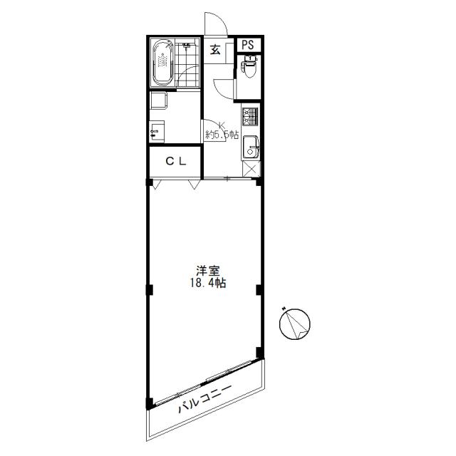
- 間取り
- 1 K
- 広さ
- 45.90, 54.40m²
- 階数
- 3 階建
- 築年月
- 2000/01
- 総戸数
- ー戸
- 建物構造
- 鉄骨造
- 種別
- マンション
- 所在地
-
鳥取県鳥取市南吉方1
- 交通
- 鳥取駅の近く
- エリア情報
-
千代川東,鳥取駅周辺
- 校区
- ー
- 周辺施設
-
- 駅名:鳥取
- ルート名:JR山陰本線
- グッドヒル鳥取店 まで、527mです
- 最寄りの薬局は、546mです。
- 最寄りのコンビニは、161mです。
- 最寄りのスーパーは、435mです。







