カレント富安 マンション 新着 賃貸 外観 エントランス部分 駐車場 業務スーパー鳥取駅南店559m エスマート末広店735m ローソン鳥取興南町店305m 鳥取生協病院795m 鳥取市立南中学校516m 外観 エントランス部分 駐車場 業務スーパー鳥取駅南店559m エスマート末広店735m ローソン鳥取興南町店305m 鳥取生協病院795m 鳥取市立南中学校516m 物件概要 賃料 105,000円 敷金 / 礼金 2ヶ月 / 1ヶ月 間取り 3 LDK 広さ 77.20m² 階数 15 階建 築年月 2004/03 総戸数 ー戸 建物構造 種別 マンション 所在地 鳥取県鳥取市富安 地図を見る 交通 鳥取駅の近く エリア情報 千代川東,鳥取駅周辺,鳥取駅南側 校区 鳥取市立南中学校 周辺施設 駅名:鳥取 ルート名:JR山陰本線 鳥取生協病院 まで、795mです 最寄りの薬局は、506mです。 最寄りのコンビニは、305mです。 最寄りのスーパーは、559mです。
募集中のお部屋 ROOM LIST 号室 賃料 概要・備考欄 703 105,000円 分譲賃貸マンションオートロック宅配ボックストランクルームエアコン3台&食洗器&照明器具付き ホームセンター・ドラッグストア近く生活便利/駐車場は機械式(高さ制限あり) 抗菌サービス・消火剤別途 家賃保証会社加入要 解約時の室内清掃・畳の表替え費用は借主負担 詳細を見る
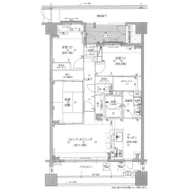
703 号室の詳細 賃料 105,000 円 間取詳細 12.3 LD, 3.4 K, 6.2 洋室, 6.0 和室, 5.9 洋室 共益費 5,000 円 向き 南 駐車場 空有 敷地内 6,000円 専有面積 77.20m² 家財保険 要 取引態様 仲介 所在階 7 階 契約期間 2 年 築年月 2004/03 引渡 即時 現況 空家 保証会社 加入要 日本セーフティー(株) 58000(円)(初回最低保証料賃料合計の50%、更新保証料10,000円/年) 設備・条件 楽器不可, 2人入居可, 単身者希望, 分譲賃貸該当, 水道公営, 排水下水, バス専用, トイレ専用, バス・トイレ別, シャワー, コンロ種別IH, コンロ口数三口, システムキッチン, 給湯, シャワー付洗面化粧台, エアコン, 洗濯機置き場室内, CATV, オートロック, エレベーター, バルコニー, 宅配ボックス, 駐輪場, TVドアホン, 温水洗浄便座, オール電化, カウンターキッチン, 浴室乾燥機, 洗面所独立, 浴室1.6x2.0m以上, 食器洗い乾燥機, 防犯カメラ, クローゼット, シューズボックス, 照明器具付き, ディンプルキー, 複層ガラス・複層サッシ 情報公開日 2025/11/27 備考 駐車場は機械式(高さ制限あり) 抗菌サービス・消火剤別途 家賃保証会社加入要 解約時の室内清掃・畳の表替え費用は借主負担 物件管理番号 C03000098-000000000000210-0003
取り扱い店舗 エイブルネットワーク鳥取駅前店 鳥取市扇町102 エスディビル1階 営業時間:10:00~19:00 定休日:水曜日・祝祭日 0857-25-5050 来店予約 公式LINE 内覧希望・お問合せ 物件情報を印刷する